Epcon Communities

EPCON COMMUNITIES FLOOR PLANS:

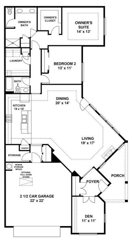
Courtyard Series

Price Range: Low $400s – High $500s

The Courtyard Series by Epcon Communities includes three models that range in size from 1,519 to 2,769 square feet. Homebuyers can select a home that has two or three bedrooms, two or three bathrooms, and an attached two-and-a-half-car garage. All homes include first-floor master suites and the option to add a second floor.

PALAZZO

PORTICO

PROMENADE

PROMENADE

I ​hope you and your family are healthy and happy!   Don’t hesitate to call if I can answer any questions or you would like me to set you up on a feed of properties coming on the market.

Warm Wishes,

Barbara Green

919-522-0880

Barbara@Cary-NC.com

CLICK HERE to see our Facebook group

CLICK HERE to see more information on my website

CLICK HERE to see my blog